Mẫu nhà bê tông đúc ABL 2 phòng ngủ mặt tiền 7m
Dự Án

Mẫu nhà bê tông đúc ABL 2 phòng ngủ mặt tiền 7m

Thông tin dự án

  • Tên dự án: Nhà ở gia đình
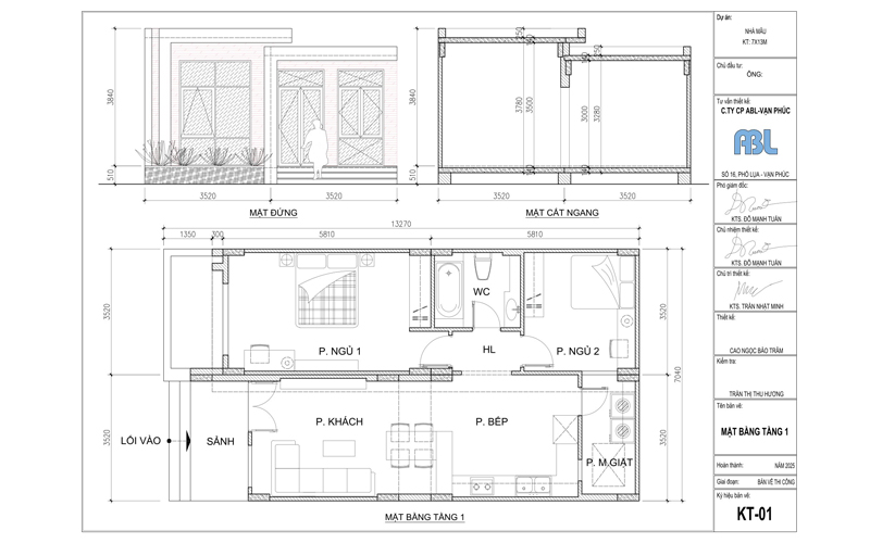
  • Kích thước: 7 x 13 m
  • Không gian sử dụng: 2 phòng ngủ, 1 phòng bếp, 1 phòng khách, 1 WC và 1 phòng giặt đồ
  • Kinh phí dự kiến: 700 triệu
  • Đơn vị thiết kế: ABL Vạn Phúc
  • Ý tưởng: sử dụng 4 modules nhà bê tông đúc sẵn mẫu V05B-ABL
  • Mẫu nhà bê tông đúc sẵn ABL với thiết kế 2 phòng ngủ, mặt tiền rộng 7m là lựa chọn lý tưởng cho các gia đình trẻ đang tìm kiếm một không gian sống tiện nghi, bền vững và tiết kiệm chi phí. Sử dụng công nghệ bê tông đúc sẵn hiện đại giúp rút ngắn thời gian thi công, đảm bảo chất lượng kết cấu và khả năng chống chịu thời tiết tốt. Với mặt tiền rộng thoáng, bố trí không gian hợp lý, mẫu nhà mang đến cảm giác hiện đại, thoáng đãng và đầy đủ công năng cho sinh hoạt gia đình. Đây là giải pháp kiến trúc phù hợp cả ở thành thị lẫn nông thôn, đặc biệt trong bối cảnh xu hướng xây dựng xanh, tiết kiệm năng lượng ngày càng được ưa chuộng.
  • Mẫu nhà sử dụng 4 modules nhà lắp ghép mẫu V05B-ABL. Đây là mẫu nhà bê tông đúc, được đúc riêng từng cấu kiện tại nhà máy sản xuất; các cấu kiện gồm: sàn, mái và 2 vai tường. Sau khi đúc xong, các cấu kiện này được vận chuyển đến công trình và thực hiện lắp đặt nhờ cẩu hạ, tối thiểu cẩu sử dụng là 25 tấn.
Lưu ý: khi lựa chọn vị trí lắp đặt: để quá trình thi công bằng cẩu diễn ra thuận lợi, khu vực lắp đặt cần có đường tiếp cận rộng trên 5m, không có khúc cua gấp và đảm bảo không gian trống thoáng xung quanh để thiết bị nâng hạ hoạt động an toàn, hiệu quả.

Hình ảnh thiết kế ngoại thất mẫu nhà mặt tiền 7m, 2 phòng ngủ

  • Thiết kế ngoại thất nhà bê tông đúc ABL 2 phòng ngủ mặt tiền 7m 1
  • Thiết kế ngoại thất nhà bê tông đúc ABL 2 phòng ngủ mặt tiền 7m 2
  • Bản vẽ mặt bằng nhà 2 phòng ngủ

Hình ảnh thiết kế nội thất

  • Hình ảnh thiết kế phòng khách và bếp nhà 2 phòng ngủ
  • Thiết kế phòng khách
  • Thiết kế chi tiết nội thất bếp
  • Thiết kế nội thất phòng ngủ thứ nhất
  • Thiết kế tủ áo cho phòng ngủ thứ nhất
  • Thiết kế nội thất phòng ngủ thứ nhất 1
  • Thiết kế nội thất phòng ngủ thứ hai
  • Thiết kế phòng giặt đồ
  • Thiết kế nhà vệ sinh